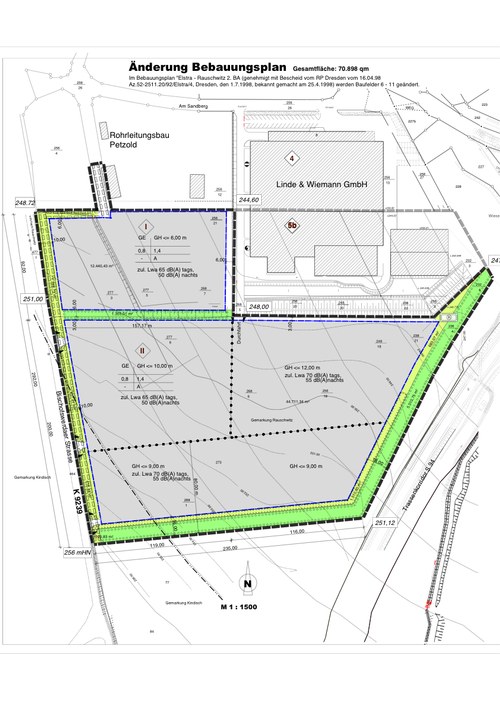
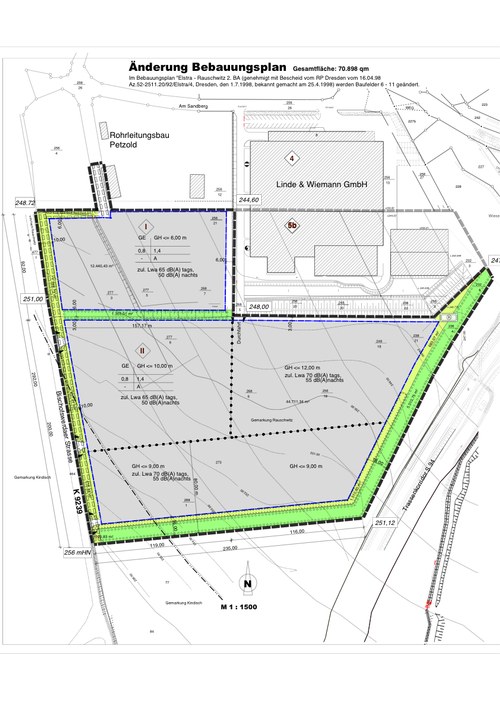
Das Gewerbegebiet der Stadt Elstra befindet sich in unmittelbarer Nähe der Autobahn A4 nur wenige hundert Meter entfernt von der Autobahnausfahrt Burkau.
Luftbild aus Richtung Osten
Luftbild aus Richtung Süden (Autobahn A4)
Übersichtskarte
Ihr Ansprechpartner
Stadtverwaltung Elstra Bürgermeister, Herr Frank Wachholz Am Markt 01 01920 Elstra Tel.: +49 035793/81-0 Fax: +49 035793/8125 Mail: stadtelstra(at)t-online.de www.elstra.de